Skip to main content
SOLD
$389,950
Date 09/05/2025

504 Woodview Drive
Raymore, MO 64083

Single Family
Residential
2
Beds
2
Baths
1,625
Sq. Ft.
0.21
Acre Lot
KCRAR Websites> Missouri> Raymore> 64083
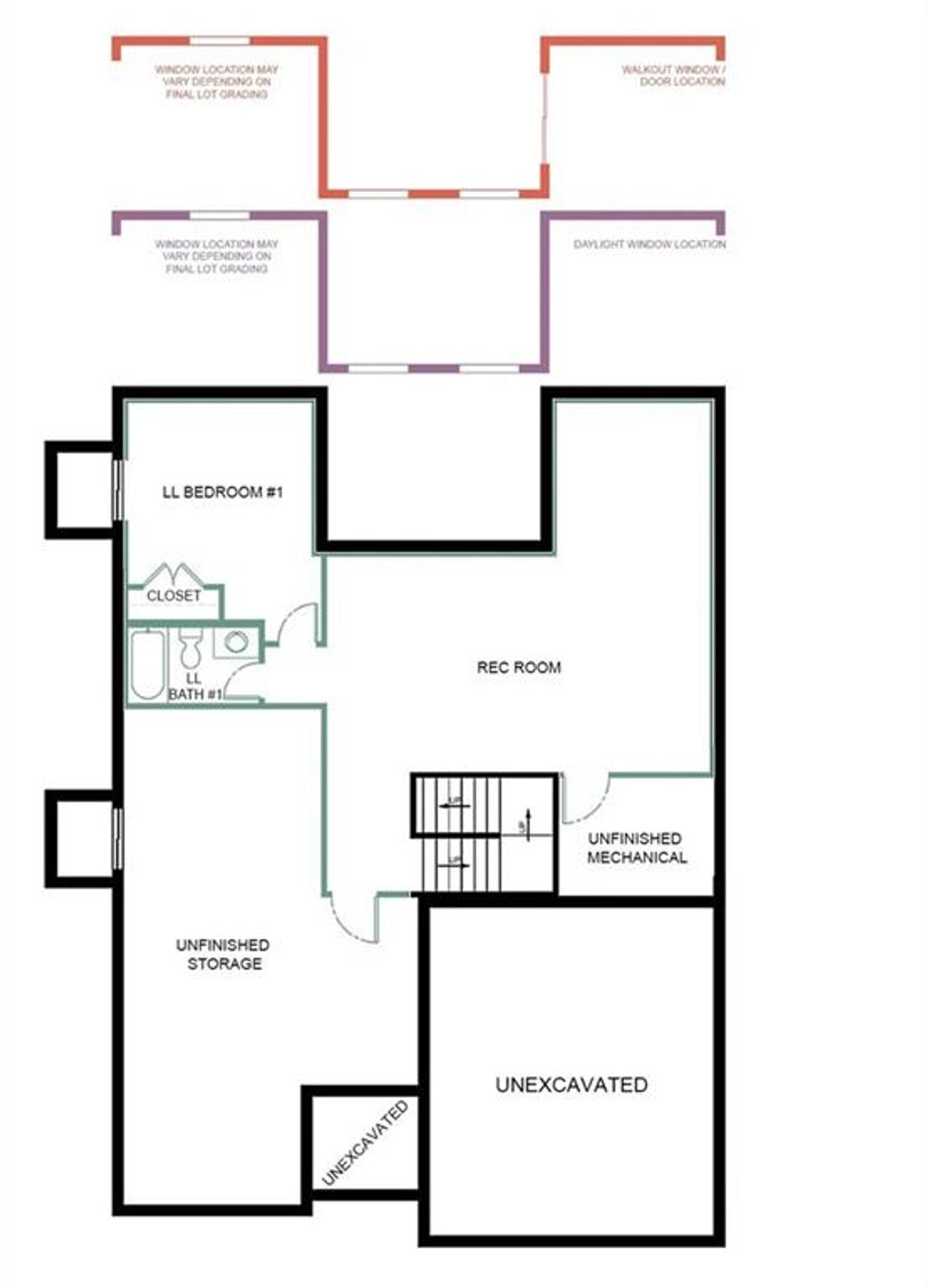
PRICED REDUCED!!!!!!! Welcome to this stunning luxury ranch-style home, where modern elegance meets timeless comfort. Boasting 2 spacious bedrooms and 2 full bathrooms, this meticulously designed residence offers beautiful hardwood floors throughout the main living areas, while tile flooring adds durability and style to the bathrooms and laundry room. The gourmet kitchen is a chef's dream, featuring high-end appliances, a walk-in pantry, and a charming coffee bar - perfect for starting your mornings. The spacious dining area seamlessly flows into the covered patio, creating an inviting indoor-outdoor living experience. A mudroom provides the perfect drop zone for everyday convenience. The home also includes a full, unfinished basement, offering the potential to expand with 2 additional bedrooms, a full bathroom, and ample storage space. Don't miss this opportunity to own a truly exceptional home that combines elegance, functionality, and future possibilities. Schedule your private tour today! This home is currently in the sheetrock stage. ECD estimated Sept 2025. Please Contact Noelle Stephens 913-808-2100 for more information.
2532085
Residential - Single Family, Traditional
2
2 Full
2025
Cass
0.21 Acres
Public Water
Lap Siding, Wood Siding
Public Sewer
Loading...
The scores below measure the walkability of the address, access to public transit of the area and the convenience of using a bike on a scale of 1-100

Walk Score

Transit Score

Bike Score

Loading...
This content last refreshed on 11/18/2025 12:54 PM CST. Some properties which appear for sale on this web site may subsequently have sold or may no longer be available.
Information is deemed reliable but is not guaranteed.