Skip to main content
FOR SALE
$525,000

4209 SE Adams Drive
Blue Springs, MO 64014

Single Family
Residential
3
Beds
3
Baths
2,011
Sq. Ft.
0.22
Acre Lot
KCRAR Websites> Missouri> Blue Springs> 64014
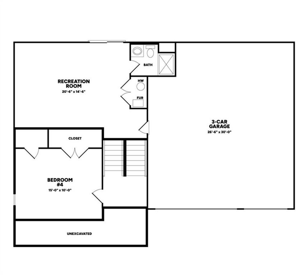
Popular Front to Back Split in Eagles Creek of Blue Springs! Close to completion - come and see the massive quartz island and well designed kitchen! Amazing master suite and large open spaces. Main floor laundry. Huge 3 car garage!
2544789
Residential - Single Family, Contemporary
3
3 Full
2025
Jackson
0.22 Acres
Public Water
Lap Siding
Public Sewer
Loading...
The scores below measure the walkability of the address, access to public transit of the area and the convenience of using a bike on a scale of 1-100

Walk Score

Transit Score

Bike Score

Loading...
This content last refreshed on 1/18/2026 5:23 AM CST. Some properties which appear for sale on this web site may subsequently have sold or may no longer be available.
Information is deemed reliable but is not guaranteed.